Details
Gallery
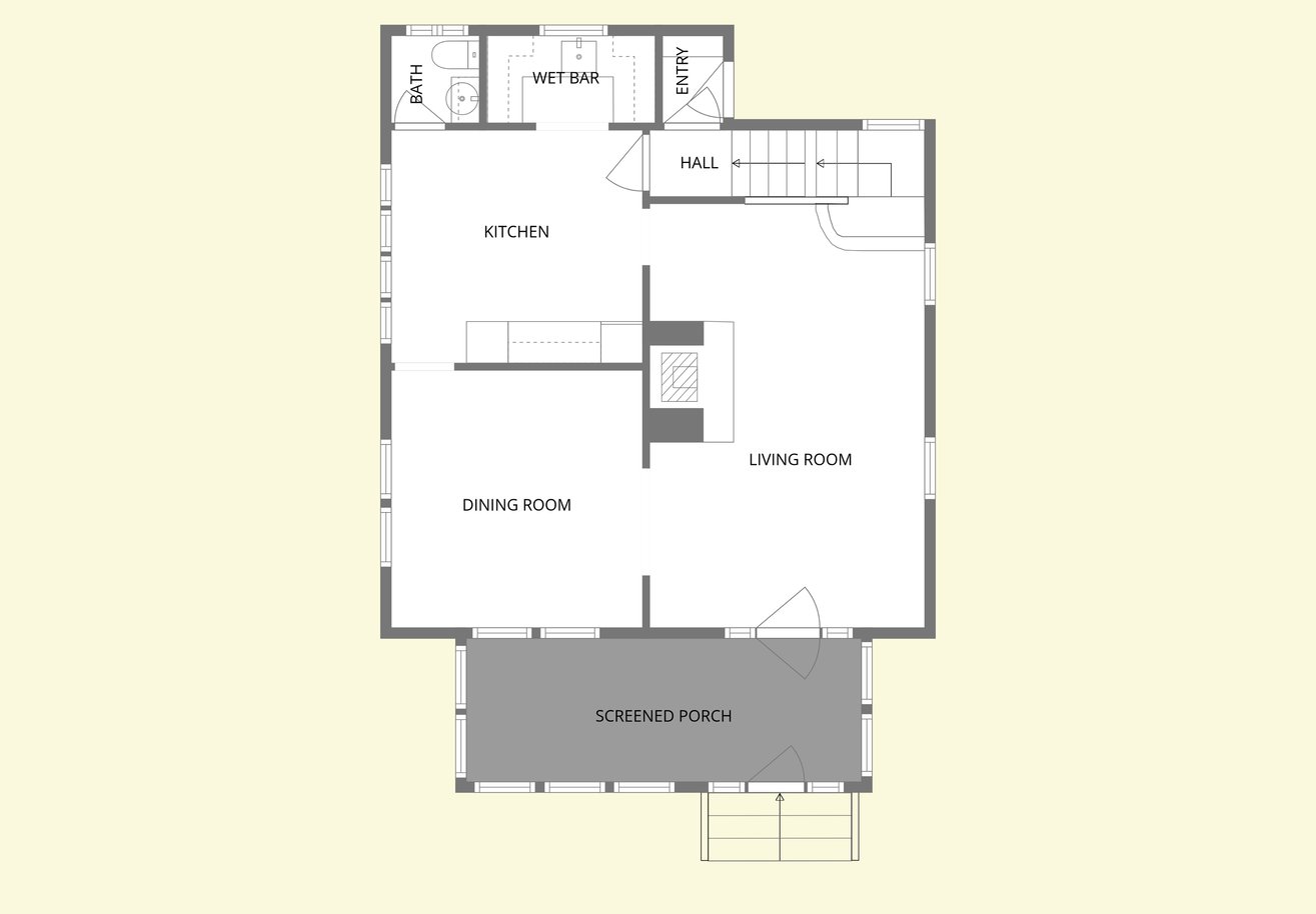
Floor Plans
Contact
24 Paramount Avenue, Hamden, CT
Floor Plans
Floor Plan 1
Floor Plan 2
Floor Plan 3
Floor Plan 4
Floor Plan 5
Contact Us
Heather Sawyer
Realtor ®
C: 310.953.1686
The Sawyer Team
I'm interested in Video Chat
No
Yes
First Name
Last Name
Email Address
Phone Number
Message
I’m interested in 24 Paramount Avenue in Hamden.
Request Info